Site
*****SITE WITH FULL PLANNING PERMISSION & EXCELLENT DEVELOPMENT POTENTIAL*****
***Colman Grimes Estate Agents***are delighted to offer to the market this superb opportunity to acquire a site for sale with full planning permission & excellent development potential. Areac.300.41 sqm / 3,234 sq ft & 3m of vehicular access off Lullymore Terrace. The property which was previously used as a car garage workshop is currently being offered to the market cleared & with vacant possession.
The existing footprint consists of one largecleared yard & rear gated laneway access off Donore Avenue & Frontvehicular access from Lullymore Terrace.
Planning Granted (Reference: https://www.pleanala.ie/en-ie/case/312075)
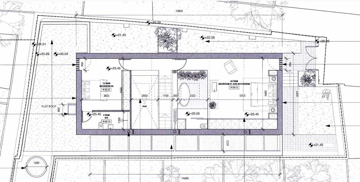
Planning permission for the developmentcomprising:
· Demolition of existing workshop (114sq.m), semi covered courtyard (99sq.m)and office (7.5sq.m) – Which is completed
· Construction of a two bedroom, two storey detached dwelling c.150 sqm in size. The dwelling will be served by a covered laneway, a garage with 1no. car parking space and various areas of private open space. Vehicular access to the site will be provided via an existing access from Lullymore Terrace. The existing gate will be replaced to facilitate this. A second access for pedestrians will be provided via a laneway from Donore Avenue.
· Permission is also sought for landscaping, boundary treatments, SuDs drainage and all associated works necessary to facilitate development.
FEATURES
• Site with Full Planning Permission
• Detached House Type
• Superb Development Potential
• Large Vehicular Access
• Total Site Area c.300 sqm
• Zoning objectives – Zone Z1
• Picturesque Residential Area
• Side& Front Access
LOCATION
Lullymore Terrace is a picturesque residential area situated parallel to the canal overlooking the water's edge & Clogher Road stone bridge. It is set in a very sought after city location and is conveniently situated close to an abundance of local and city centre amenities including numerous shopping facilities, cafés, bars and restaurants to choose from. St Stephen' s Green and Grafton Street are only 20 minutes' walking distance. The area is serviced by a number of Bus routes and the Green Line LUAS is close by.
TOTAL SITE AREA: 300.41 sqm / 3,234 sq. ft(Including Laneway)
PARKING: 1 x Designated Off Street Parking Space
DIRECTIONS
See map for accurate directions

Land


.png)
.png)

For Sale
Bedrooms
Bathrooms
1
Parking Spaces
Square Feet
Recent pictures taken of the property.
Recent video took of the property.
Location of the property.
A list of features of this property.

We are ready to answer all your questions
Properties found in this area